物件の特徴
-
バストイレ別
-
室内洗濯機置場
-
TVモニタ付きインターホン
-
独立洗面台
-
浴室乾燥機
セールスポイント
ドアを開けたり直接会話しなくてもモニター越しに来訪者を確認できるモニター付きインターホンがあります。収納はシューズボックス・クロゼット・全居室収納など豊富なので、衣類や履き物の整理がしやすく便利です。お湯を温め直せる追い焚き機能付きです。戸建ての買い替えなら、西武多摩湖線武蔵大和周辺はいかがでしょうか。LiV Life Estateまで042-460-4016からご連絡ください。
ポイント
駐車2台可 玄関ホール TVインターホン エアコン クロゼット2ヶ所
担当者のコメント
パノラマ画像

風呂
基本情報
- 保証金
- 0ヶ月
- 敷引 / 償却
- - / -
- 敷金積み増し
- -
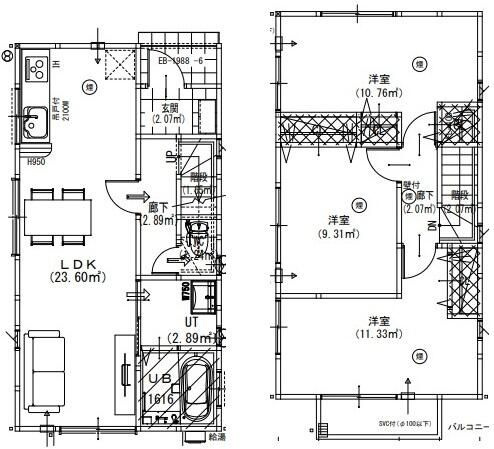
- 間取り / 詳細
- 3LDK
洋室 6.8帖/洋室 6.5帖/洋室 5.6帖/LDK 14.2帖
- 向き
- 南
- 建物面積
- 77.00㎡
- バルコニー
(テラス)面積 - -
- 階建て
- 2階建
- 建物構造
- 木造
- 築年月
- 2025年1月(築1年)
- 種別
- 一戸建て
- 保険会社 / 料金
- 有 20,000円 / 2年
- 保証会社 / 料金
- 必加入 / その他
賃料の100% 年毎に賃料の15%
- 駐車場
- 有(2台) 0円
- 現況
- 完成済み
- 入居可能時期
- 即時
- その他条件
- ホームマイスター24:1万6,500円 スマートキー:1,650円(月額) 社宅可 事務所使用可 SOHO使用可ペット相談
設備条件
- 設備条件
-
- ペット相談 / 保証人不要 / 事務所可 / 2人入居可 / 室内洗濯機置場 / フローリング / メゾネット / 専用庭 / バルコニー / プロパンガス / 公営水道 / 公共下水 / 24時間換気システム / 電気有 / 駐輪場 / バイク置場あり / 駐車2台可 / コンロ2口以上 / システムキッチン / コンロ3口 / バス・トイレ別 / 追焚機能浴室 / 浴室乾燥機 / 温水洗浄便座 / シャワー / 独立洗面台 / エアコン / シューズボックス / TVモニタ付インターホン / 24時間緊急通報システム / 角部屋 / 初期費用カード決済可
その他
- 契約期間
- 2年
- 賃貸区分
- 一般
- 更新料
- 1ヶ月(新賃料)
- 更新事務手数料
- -
- 総戸数
- -
- 特優賃
- -
- 取引態様
- 仲介
- 物件番号
- 91007787
- 管理コード
- -
- 情報更新日
- 2026年02月07日
- 次回更新予定日
- 2026年02月10日
- 取扱会社
-
- LiV Life Estate株式会社
- 東京都小平市花小金井1丁目1-6 K&Kはなこビル 3階
- TEL:042-460-4016
- 東京都知事 (1) 第106673号
- 備考
- 来客が一目でわかるTVインターホン付き。収納はシューズボックス・クロゼット・全居室収納など豊富なので、広々と空間を利用することも可能です。室内設備は洗面化粧台・浴室乾燥機などが揃っており、とても充実しています。安心して暮らせる戸建てを、西武多摩湖線武蔵大和近辺で探すのなら、まずはLiV Life Estateにご連絡下さい。042-460-4016からお電話もお待ちしております。
周辺施設
-
コンビニエンスストア
ローソン 西武武蔵大和駅前店
395m(5分)
-
コンビニエンスストア
セブンイレブン 東村山廻田町店
550m(7分)
-
コンビニエンスストア
ファミリーマート 東村山富士見町店
669m(9分)
-
ドラッグストア
ココカラファイン 東大和清水店
830m(11分)
-
家電製品
ヤマダ電機 テックランド東大和店
1553m(20分)
-
ドラッグストア
ウエルシア東村山野口店
1777m(23分)
近隣の物件
グランソフィア廻田町
16.8万円
-
3LDK(77.00㎡)
川辺 良平